FOCE MARE MQ. 130 - AMPIO GIARDINO

Genova - zona Foce

Rif: 11 - 17 FOCE MARE
Condividi Linkedin Whatsapp Stampa
€ 410.000
Appartamento
130 Mq
5 Vani
Giardino
Classe energetica F
4 Camere
2 Bagni
Ascensore
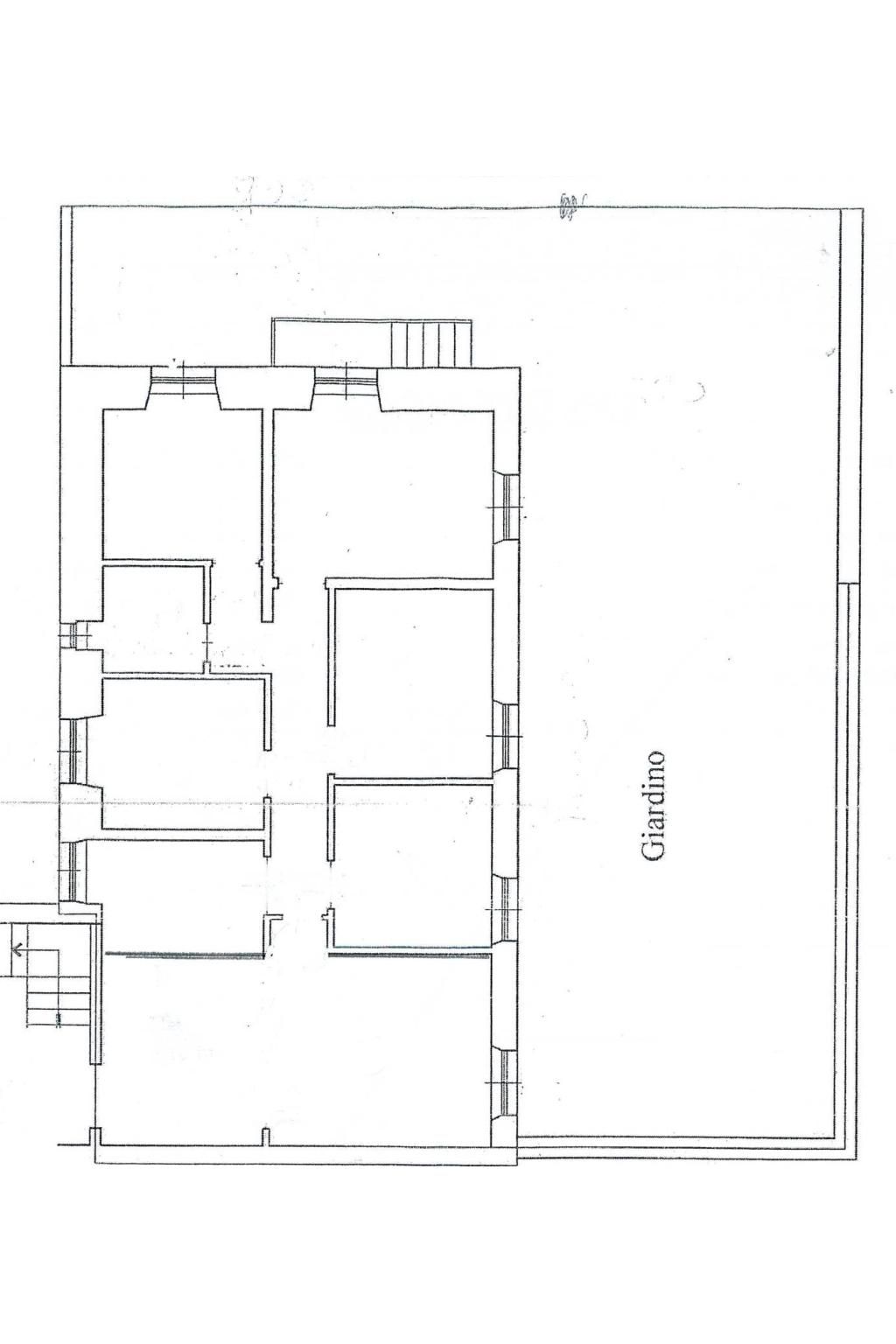
FOCE- MARE via Casaregis a pochi passi da Corso Italia comodo a mezzi e servizi, proponiamo vani 8,5 vani completamente RISTRUTTURATI con splendido GIARDINO.
Internamente l'immobile è composto da ingresso, soggiorno, quattro camere da letto, ampia cucina da cui si accede al GIARDINO, doppi servizi. L'appartamento è stato completamente ristrutturato con l'utilizzo di materiali di pregio: pavimenti in gres, serramenti a taglio termico di ultima generazione, porta blindata, aria condizionata. L'immobile si trova in un bel palazzo d'epoca dotato di risaldamento centralizzato.
Completa la proprietà una cantina. RIF. 11 - 17 - Le informazioni contenute in questo annuncio sono puramente indicative e non costituiscono vincolo contrattuale - Per informazioni e appuntamenti chiamare HOME GALLERY tel. 010.8609640 - e-mail: quinto@immobiliarehomegallery.it - sito: www.immobiliarehomegallery.com - Sede di QUINTO in Via A. Gianelli 103-105 r. Genova - sede di ALBARO in Via Bocchella 4 - sede di STURLA in Via Sturla 10 - sede di LAVAGNA nel Porticciolo

Dettaglio immobile

Contratto Vendita
Rif 11 - 17 FOCE MARE
Prezzo € 410.000
Provincia Genova
Comune Genova
Zona Foce
Indirizzo Via Giuseppe Casaregis
Superficie 130 mq
Vani 5
Camere 4
Bagni 2
Classe energetica F (DL 192/2005)
EPI 175 kwh/m2 anno
Riscaldamento centralizzato
Condizioni abitabile
Spese condominiali € 180
Anno di costruzione 1930
Ascensore si
Cantina si
Giardino
Cucina abitabile

Consistenze

Descrizione Superficie Sup. comm.
Principali
Immobile - piano terra 130 Mq 130 Mqc
Totale 130 Mqc

Planimetrie

Richiedi maggiori informazioni

Autorizzazione al trattamento dei dati personali+
Dichiaro di aver letto l'informativa sulla privacy ed accetto le condizioni d'utilizzo del servizio.
Riempi il campo con il codice riportato nell'immagine*
Codice Captcha
Chiamaci Contattaci