STRUPPA - " LA ROSATA" CAPANNONE MQ 1000

Genova - zona Struppa

Rif: 8 - CAPANNONE ROSATA
Condividi Linkedin Whatsapp Stampa
€ 4.400
Affitto
Capannone industriale
1000 Mq
1 vano
Classe energetica G
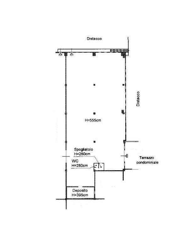
STRUPPA LA ROSATA proponiamo in locazione CAPANNONE mq 1000 altezza mt 5,55.
Il capannone posto al 4° piano, è composto da doppi ingressi un ampio locale, oltre deposito, servizio e spogliatoio.
Ideale per molteplici attività, deposito o magazzino
Posizione eccezionale a pochi minuti dallo svincolo autostradale di Genova Est. rif 8
Le informazioni contenute in questo annuncio sono puramente indicative e non costituiscono vincolo contrattuale.
Per informazioni e appuntamenti telefonare - HOME GALLERY tel. 010.8609640 - e-mail: quinto@immobiliarehomegallery.it - sito: www.immobiliarehomegallery.com - Via A. Gianelli 103-105 r. Genova Quinto - altra sede in Albaro, Via Bocchella 4. - Altra sede Via Sturla 10

Dettaglio immobile

Contratto Affitto
Rif 8 - CAPANNONE ROSATA
Prezzo € 4.400
Provincia Genova
Comune Genova
Zona Struppa
Indirizzo Via Luigi Canepa
Superficie 1000 mq
Vani 1
Classe energetica G (DL 192/2005)
EPI 65 kwh/m2 anno
Riscaldamento inesistente
Condizioni ottime condizioni
Spese condominiali € 190
Ascensore no

Consistenze

Descrizione Superficie Sup. comm.
Principali
Capannone - 4° piano 1.000 Mq 1.000 Mqc
Totale 1.000 Mqc

Planimetrie

Richiedi maggiori informazioni

Autorizzazione al trattamento dei dati personali+
Dichiaro di aver letto l'informativa sulla privacy ed accetto le condizioni d'utilizzo del servizio.
Riempi il campo con il codice riportato nell'immagine*
Codice Captcha
Chiamaci Contattaci